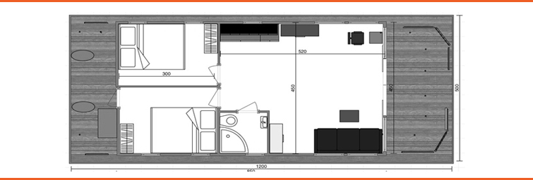
Canalboat MINI

Lengde 9 m, bredde 3 m, høyde (i dette flyter) 3,40 m, høyde over nivå vann 2,70 – 2,90 avhengig av lasten, boareal 5mx3m = 15m2, nedsenking 0,40-0,50 m, kategori D, CE


  • polyetylen flyter katamaran på stålkonstruksjon
  • trehus design, skum isolasjon 5 cm, aluminium vinduer, pvc fasade
  • vorte instalasjon, rene vanntanker 250 L, Selvspennende trykkpumpe, tank av avfall 250 L (med sensoren)
  • terrasse: Skandinavisk terrassebord, aluminium rekkverk
  • vann, elektrisk, antenne, oppvarming instalasjon med komfyr og radiatorer, eske til gasflaske
  • tak med PVC-paneler; hvit, ledet belysning
  • Baderom: dusj, elektrisk toalett, speil, servant med skap
  • Linoleum liner
  • Bakgrunn laget av glassfiber med maleri
  • Interiørdører 1 stk
  • Aluminium eller stålklemmer
  • Kjøring: Yamaha 9.9 utenbordsmotor + oppladbart batteri
  • Helm: laminert eller metall, hvit eller grå
  • Navigasjonslys og lydsignal
  • Solar pakke: 2 fotovoltaiske paneler 250W hver
  • System Power Plus: Inverter 2400W, 4x240, 6V batterier
  • Omvendt kamera
  • Drivstofftank 70l
  • tepper
  • persienner
  • Kjøring: Merkur 15kM eller Honda 20 kM motor
  • Gassgrill
  • pile anker
  • Øvre terrasse, trapper og aluminium barrierer
  • Rekkverk av stål
  • Elektrisk kjøring
  • 6,0 epropulsjonsmotor 8 x 250 Ah batterier
  • Pump av avfall
  • tau 4 stk
  • Oppblåsbare hopper 4 stk
  • Gardinstenger
  • Førersete - svart eller hvitt eller brunt
  • Beskyttelse av tanker til vinteren
  • En radio med to høyttalere
  • Sikkerhetsutstyr for 4 personer
  • Stue: benk, sofa
  • Soverom: dobbeltseng eller sofa
  • Ekstern LED-belysning
  • 32 'TV + Glomex-antenne
  • Termisk isolasjon 8 cm

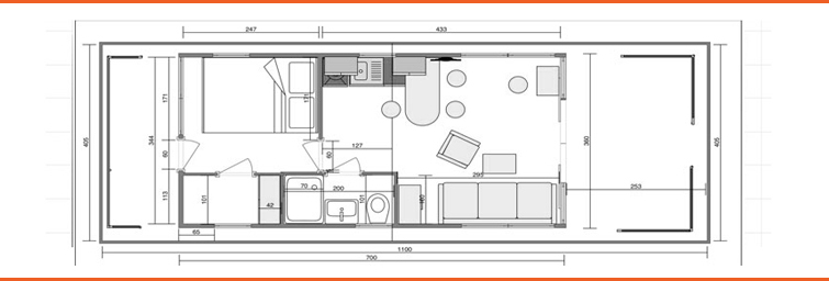
Canalboat

Lengde 12 m, bredde 3,2 m, høyde (i dette flyter) 3,40 m, høyde over nivå vann 2,70 – 2,90 avhengig av lasten, boareal 7mx3m = 21m2, nedsenking 0,40-0,50 m, kategori D, CE


  • polyetylen flyter katamaran på stålkonstruksjon
  • trehus design, skum isolasjon 5 cm, aluminium vinduer, pvc fasade
  • vorte instalasjon, rene vanntanker 250 L, Selvspennende trykkpumpe,tank av avfall 250 L (med sensoren)
  • terrasse: Skandinavisk terrassebord, aluminium rekkverk
  • vann, elektrisk, antenne, oppvarming instalasjon med komfyr og radiatorer, eske til gasflaske
  • tak med PVC-paneler; hvit, ledet belysning
  • Baderom: dusj, elektrisk toalett, speil, servant med skap
  • Linoleum liner
  • Bakgrunn laget av glassfiber med maleri
  • Interiørdører 2 stk
  • Aluminium eller stålklemmer
  • Kjøring: Yamaha 9.9 utenbordsmotor + oppladbart batteri
  • Helm: laminert eller metall, hvit eller grå
  • Solar pakke: 4 fotovoltaiske paneler 250W hver
  • 230V inverter med 2400 W strøm, 4 x 240 Ah 6V batterier
  • Drivstofftank 70l
  • Navigasjonslys og lydsignal
  • tepper
  • persienner
  • Kjøring: Merkur 15kM eller Honda 20 kM motor
  • Gassgrill
  • pile anker
  • Øvre terrasse, trapper og aluminium barrierer
  • Rekkverk av stål
  • Skyv 1 - passasjer
  • Skyv 2 - passasjer
  • Pump av avfall
  • tau 4 stk
  • Oppblåsbare hopper 4 stk
  • Gardinstenger
  • Førersete - svart eller hvitt eller brunt
  • Beskyttelse av tanker til vinteren
  • En radio med to høyttalere
  • Sikkerhetsutstyr for 4 personer
  • Stue: benk, sofa
  • Soverom: dobbeltseng eller sofa
  • Ekstern LED-belysning
  • 32 'TV + Glomex-antenne
  • Termisk isolasjon 8 cm

Apartboat MINI

Lengde 9 m, bredde 3,6 m, høyde (i dette flyter) 3,40 m, høyde over nivå vann 2,70 – 2,90 avhengig av lasten, boareal 5,5mx3,4m = 18,5 m2, nedsenking 0,40-0,50 m, kategori D, CE


  • polyetylen flyter katamaran på stålkonstruksjon - Byggingen av huset er tre, aluminiumsvinduer K-0,1, farge ral, sidevinduer, sikkerhetsglass, to runde vinduer
  • Ekstern fasade - piding sidespor
  • vorte instalasjon, rene vanntanker 250 L, Selvspennende trykkpumpe, tank av avfall 250 L (med sensoren)
  • terrasse: Skandinavisk terrassebord, aluminium rekkverk
  • Vann og oppvarming installasjon med en ovn og radiatorer, en boks for 1 gassylinder
  • Elektrisk installasjon, tv-antenneinstallasjon, høyttalerinstallasjon
  • Isolering 5cm skum
  • Tak laget av plastpaneler med LED-belysning
  • Linoleum liner
  • Bakgrunn laget av glassfiber med maleri i farge
  • Baderom: dusj, servant på skapet, elektrisk toalett, speil, vifte
  • Interiørdører 3 stk
  • Kjøkkenkrok: kjøkkenmøbler, lengde 120 cm (opp og ned), belysning, 2-brenner gass komfyr, innebygd kjøleskap 230V
  • Aluminiums- eller stålklemmer - 4 stk
  • stige
  • System Power Plus: Inverter 2400W, 4x240, 6V batterier
  • Solar pakke: 2 fotovoltaiske paneler 250W hver
  • Kjøring: Merkur 15kM eller Honda 20 kM motor
  • Helm: laminat eller metall, hvit eller grå
  • Omvendt kamera
  • Drivstofftank 70l
  • Navigasjonslys og lydsignal
  • tepper
  • persienner
  • Soverom: dobbeltseng eller sofa
  • Gassgrill
  • pile anker
  • Øvre terrasse, trapper og aluminium barrierer
  • Rekkverk av stål
  • Elektrisk kjøring
  • 6,0 epropulsjonsmotor 8 x 250 Ah batterier
  • Pump av avfall
  • tau 4 stk
  • Oppblåsbare hopper 4 stk
  • Gardinstenger
  • Førersete - svart eller hvitt eller brunt
  • Motorer: Yamaha 2x9,9kM + 2 drivstofftanker etter 22l, 65Ah batteri
  • Beskyttelse av tanker til vinteren
  • En radio med to høyttalere
  • Sikkerhetsutstyr for 4 personer
  • Stue: benk, sofa
  • Soverom: dobbeltseng eller sofa
  • Ekstern LED-belysning
  • 32 'TV + Glomex-antenne
  • Termisk isolasjon 8 cm

Apartboat

Enhet med en bredde på 4,18 m med eksterne broer ~ 0,25 m, lengde 10,8 m, total høyde 3,40 m, høyde over vannnivå 2,65-2,80 m avhengig av lasten, dypping om 0,45m, polyetylen flyter. Boareal 3,6m X 7m 25,2 m2, bue terrasse 10 m2, akter terrasse 5 m2, vekt - 7 tonn. Enheten er beregnet til svømming på elver, kanaler, innsjøer og på kystvann. Termisk isolasjon. Muligheten for bruk om vinteren.


  • polyetylen flyter katamaran på stålkonstruksjon
  • Byggingen av huset er tre, aluminiumsvinduer K-0,1, farge ral, sidevinduer, sikkerhetsglass, to runde vinduer
  • Ekstern fasade - skjult sidespor
  • vorte instalasjon, rene vanntanker 250 L, Selvspennende trykkpumpe, tank av avfall 250 L (med sensoren)
  • terrasse: Skandinavisk terrassebord, aluminium rekkverk
  • Vann og oppvarming installasjon med en ovn og radiatorer, en boks for 1 gassylinder
  • Elektrisk installasjon, tv-antenneinstallasjon, høyttalerinstallasjon
  • Isolering 5cm skum
  • Tak laget av plastpaneler med LED-belysning
  • Linoleum liner
  • Bakgrunn laget av glassfiber med maleri i farge
  • Baderom: dusj, servant på skapet, elektrisk toalett, speil, vifte
  • Interiørdører 3 stk
  • Kjøkkenkrok: kjøkkenmøbler, lengde 160 cm (opp og ned), belysning, 2-brenner gass komfyr, innebygd kjøleskap 230V
  • Aluminiums- eller
  • stålklemmer - 4 stk
  • Stige
  • tepper
  • Blinds plater for side og bakdører
  • Soverom: dobbeltseng eller sofa
  • Motorer: 2 x kvikksølv 15 kM
  • Motorer: 2 x yamaha 25 kM høy tillit
  • Split klimaanlegg, 2kW med 5kW inverter, 8 x 240Ah 6V batterier og en pakke med 6 solcellepaneler 250W hver
  • Ekstra soverom
  • Ekstra soveromdør - 1 stk
  • oppvaskmaskin
  • utløpsvannbehandlingssystem 25l / min
  • Økologisk toalett (ingen avføring beholder nødvendig)
  • Økologisk behandlingsanlegg 150 l / dag
  • Elektriske motorer pakke
  • 2x epropulsion 6,0 + 4x 250 Ah batterier
  • Badstue
  • Gassgrill
  • pile anker
  • Solterrasse med trapper og sammenleggbare aluminiumsbarrierer
  • Rekkverk av rustfritt stål
  • Power Plus-system: Inverter 5000W, 8x akkumulatorer 240W, 6V
  • Gulvvarme i stuen
  • gesimser
  • Pump av avfall
  • skyv 1 pasajer
  • skyv 2 pasajer
  • Redningsutstyr for 4 personer (hjul + 4 redningsvester)
  • Stue: sovesofa, bord, 4 stoler, benk, kommode
  • Soverom: dobbeltseng 150cm, innebygd garderobe 100cm med teknisk overflate
  • tau 4 stk
  • Oppblåsbare hopper 4 stk
  • Førersete
  • Beskyttelse av tanker til vinteren
  • En radio med to høyttalere
  • Sikkerhetsutstyr for 4 personer
  • Stue: benk, sofa
  • Soverom: dobbeltseng eller sofa
  • Ekstern LED-belysning 2x5m, spot belysning terrasser
  • 32 'TV + Glomex-antenne
  • Termisk isolasjon 8 cm
  • Motorer: Yamaha 2x9,9kM + 2 drivstofftanker etter 22l, 65Ah batteri
  • Styringskonsoll: laminat eller metall - hvit eller grå
  • Fotovoltaisk pakke: 4 solpaneler 250 W hver
  • 230V omformer med strøm på 2400 W, 4 x 240 Ah traktorbatterier 6V
  • 70 liter drivstofftank
  • Omvendt kamera
  • Navigasjonslys, lydsignal

Apartboat XL

Enhet med en bredde på 5 m med eksterne broer ~ 0,25 m, lengde 12 m, total høyde 3,40 m, høyde over vannnivå 2,65-2,80 m avhengig av lasten, dypping om 0,45m, polyetylen flyter. Strukturer stål - katamaran. Boareal 34,5 m2, bue terrasse 13,2 m2, akter terrasse 6 m2. Enheten er beregnet til svømming på elver, kanaler, innsjøer og på kystvann. Termisk isolasjon. Muligheten for bruk om vinteren.


  • polyetylen flyter katamaran på stålkonstruksjon
  • Byggingen av huset er tre, aluminiumsvinduer K-0,1, farge ral, sidevinduer, sikkerhetsglass, to runde vinduer
  • Ekstern fasade - skjult sidespor
  • vorte instalasjon, rene vanntanker 250 L, Selvspennende trykkpumpe, tank av avfall 250 L (med sensoren)
  • terrasse: Skandinavisk terrassebord, aluminium rekkverk
  • Vann og oppvarming installasjon med en ovn og radiatorer, en boks for 1 gassylinder
  • Elektrisk installasjon, tv-antenneinstallasjon, høyttalerinstallasjon
  • Isolering 5cm skum
  • Tak laget av plastpaneler med LED-belysning
  • Linoleum liner
  • Bakgrunn laget av glassfiber med maleri i farge
  • Baderom: dusj, servant på skapet, elektrisk toalett, speil, vifte
  • Interiørdører 3 stk
  • Kjøkkenkrok: kjøkkenmøbler, lengde 160 cm (opp og ned), belysning, 2-brenner gass komfyr, innebygd kjøleskap 230V
  • Aluminiums- eller stålklemmer
  • 4 stk
  • Stige
  • tepper
  • Blinds plater for side og bakdører
  • Motorer: 2 x 50 Honda
  • Split klimaanlegg, 2kW
  • Ekstra soverom
  • Ekstra soveromdør - 1 stk
  • oppvaskmaskin
  • utløpsvannbehandlingssystem 25l / min
  • Økologisk toalett (ingen avføring beholder nødvendig)
  • Økologisk behandlingsanlegg 150 l / dag
  • Elektriske motorer pakke - 2x epropulsion 6,0 + 4x 250 Ah batterier
  • Badstue
  • Gassgrill
  • pile anker
  • 3 kW generator sett - stille
  • Solterrasse med trapper og sammenleggbare aluminiumsbarrierer
  • Rekkverk av rustfritt stål
  • Power Plus-system: Inverter 5000W, 8x akkumulatorer 240W, 6V
  • Gulvvarme i stuen
  • Pump av avfall
  • skyv 1 pasajer
  • skyv 2 pasajer
  • Redningsutstyr for 6 personer (hjul + 6 redningsvester)
  • Stue: sovesofa, bord, 4 stoler, benk, kommode
  • 3 x Soverom: dobbeltseng, innebygd garderobe
  • tau 4 stk
  • Oppblåsbare hopper 4 stk
  • Førersete
  • Beskyttelse av tanker til vinteren
  • En radio med to høyttalere
  • Sikkerhetsutstyr for 4 personer
  • Stue: benk, sofa
  • Soverom: dobbeltseng eller sofa
  • Ekstern LED-belysning 2x10m, spot belysning terrasser
  • 32 'TV + Glomex-antenne
  • Termisk isolasjon 8 cm
  • Motorer: Yamaha 2x 25km bollard, akustisk 65Ah
  • Styringskonsoll: laminat eller metall - hvit eller grå
  • Fotovoltaisk pakke: 4 solpaneler 250 W hver
  • Power Plus-system: 2400W inverter, 4 x 240W, 6V batterier
  • Omvendt kamera
  • 100 liter drivstofftank
  • Navigasjonslys, lydsignal

Apartboat MAX

Enhet med en bredde på 6 m, lengde 15 m, total høyde 3,40 m, høyde over vannnivå 2,90-3,00 m avhengig av lasten, dypping om 0,3-0,45m, polyetylen flyter, trimaran. Boareal 11x5,5 m = 60,5 m2, bue terrasse 12 m2, akter terrasse 8 m2. Enheten er beregnet til svømming på elver, kanaler, innsjøer og på kystvann. Muligheten for bruk om vinteren.


  • polyetylen flyter katamaran på stålkonstruksjon
  • Byggingen av huset er tre, aluminiumsvinduer K-0,1, farge ral, sidevinduer, sikkerhetsglass, to runde vinduer
  • Ekstern fasade - skjult sidespor
  • vorte instalasjon, rene vanntanker 1000 L, Selvspennende trykkpumpe, tank av avfall 1000 L (med sensoren)
  • terrasse: Skandinavisk terrassebord, aluminium rekkverk
  • Vann og oppvarming installasjon med en ovn og radiatorer, en boks for 1 gassylinder
  • Elektrisk installasjon, tv-antenneinstallasjon, høyttalerinstallasjon
  • Isolering 5cm skum
  • Tak laget av plastpaneler med LED-belysning
  • Linoleum liner
  • Bakgrunn laget av glassfiber med maleri i farge
  • Baderom: dusj, servant på skapet, elektrisk toalett, speil, vifte
  • Interiørdører 3 stk
  • Kjøkkenkrok: kjøkkenmøbler, lengde 160 cm (opp og ned), belysning, 2-brenner gass komfyr, innebygd kjøleskap 230V
  • Aluminiums- eller stålklemmer - 6 stk
  • Stige
  • tepper
  • Blinds plater for side og bakdører
  • Motorer: 2 x 50 honda honda
  • Split klimaanlegg, 2kW
  • Ekstra soverom
  • Ekstra soveromdør - 1 stk
  • oppvaskmaskin
  • utløpsvannbehandlingssystem 25l / min
  • Økologisk toalett (ingen avføring beholder nødvendig)
  • Økologisk behandlingsanlegg 150 l / dag
  • Elektriske motorer pakke - 2x epropulsion 6,0 + 4x 250 Ah batterier
  • Badstue
  • Gassgrill
  • pile anker
  • 3 kW generator sett - stille
  • Solterrasse med trapper og sammenleggbare aluminiumsbarrierer
  • Rekkverk av rustfritt stål
  • Power Plus-system: Inverter 5000W, 8x akkumulatorer 240W, 6V
  • Gulvvarme i stuen
  • Pump av avfall
  • skyv 1 pasajer
  • skyv 2 pasajer
  • Redningsutstyr for 6 personer (hjul + 6 redningsvester)
  • Stue: sovesofa, bord, 4 stoler, benk, kommode
  • 3 x Soverom: dobbeltseng, innebygd garderobe
  • tau 4 stk
  • Oppblåsbare hopper 4 stk
  • Førersete
  • Beskyttelse av tanker til vinteren
  • En radio med to høyttalere
  • Sikkerhetsutstyr for 4 personer
  • Stue: benk, sofa
  • Soverom: dobbeltseng eller sofa
  • Ekstern LED-belysning 2x10m, spot belysning terrasser
  • 32 'TV + Glomex-antenne
  • Termisk isolasjon 8 cm
  • Motorer: Yamaha 2x9,9kM + 2 drivstofftanker etter 22l, 65Ah batteri
  • Styringskonsoll: laminat eller metall - hvit eller grå
  • Fotovoltaisk pakke: 4 solpaneler 250 W hver
  • 230V omformer med strøm på 2400 W, 4 x 240 Ah traktorbatterier 6V
  • 70 liter drivstofftank
  • Omvendt kamera
  • Navigasjonslys, lydsignal